Dit appartement is verhuurd.
Luxe appartement met zonneterras, werkelijk alle comfort in Res. Ter Vloet te Wingene. Winkels, openbaar vervoer, alles op wandelafstand.
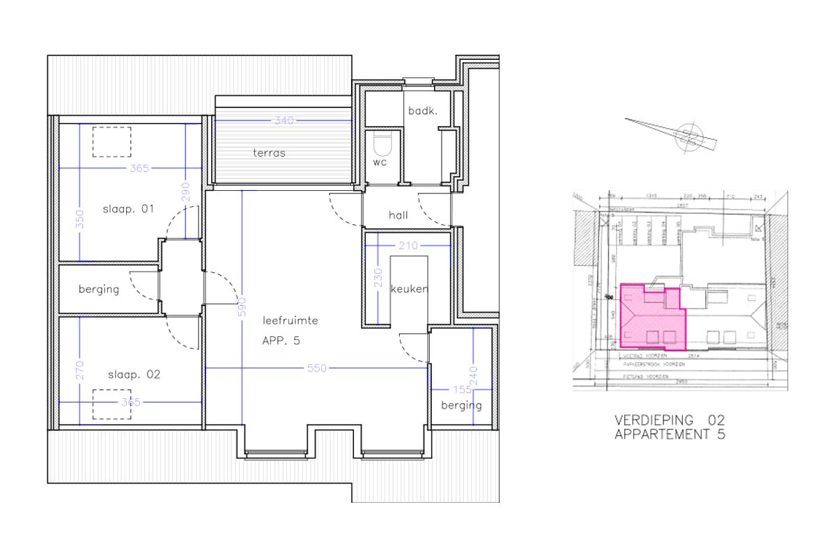
Living met modern keukeneiland / alle toestellen aanwezig - 2 slaapkamers - ruime badkamer met lavabo en douche.
Berging/wasplaats. Lift aanwezig. HR dubbel glas - Individuele gas HR ketel. Appartement is geschilderd. Instapklaar.
Kenmerken
- Referentie nr.: 005
- Prijs:
- Adres: Beernemstraat 70A - 8750 Wingene
- Beschikbaar: neen, verhuurd
- Bouwjaar: 2010
- Verdieping: 2
- Bewoonbare oppervlakte: ca. 81 m²
- Slaapkamers: 2
- Badkamers (douche): 1
- Aantal toiletten: 1
- Terras: ja, achteraan
- Verwarming: Individueel
- Verwarming: CV op gas
- Ramen: pvc
- Beglazing type: Dubbel
- EPC waarde: 99 kWh/m² (download)
- Elektriciteitskeuring: Ja, conform AREI
- Lift: Ja
- Download hier het grondplan

















