Dit appartement is verhuurd.
Kenmerken
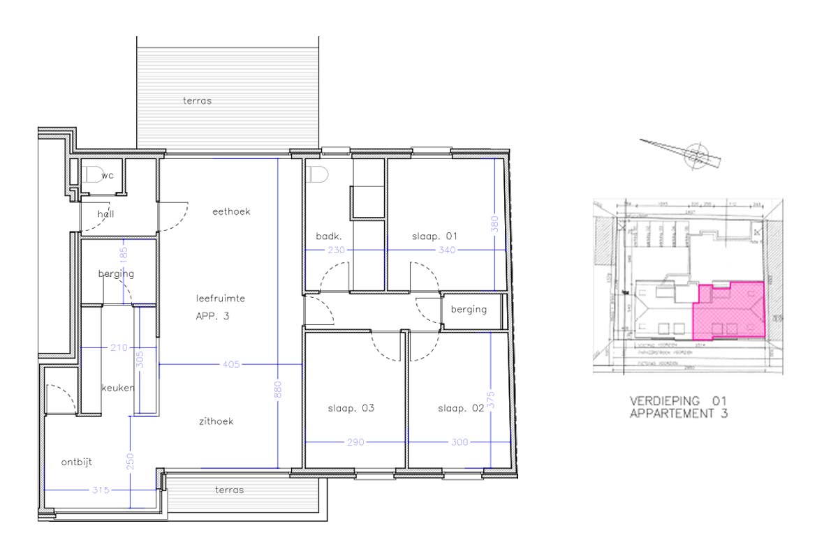
- Referentie nr.: 003
- Prijs:
- Adres: Beernemstraat 70A/102 - 8750 Wingene
- Beschikbaar: neen, verhuurd
- Bouwjaar: 2010
- Verdieping: 1
- Bewoonbare oppervlakte: ca. 118 m²
- Slaapkamers: 3
- Badkamers (bad+douche): 1
- Berging: 1
- Aantal toiletten: 2
- Terras: ja, vooraan en achteraan
- Verwarming: Individueel
- Verwarming: CV op gas
- Ramen: pvc
- Beglazing type: Dubbel
- EPC waarde: 57 kWh/m² (download)
- Elektriciteitskeuring: Ja, conform AREI
- Lift: Ja
- Download hier het grondplan

